***SANIERTES BÜRO IM FREIHAUSVIERTEL***

LICHTDURCHFLUTET - NEUE FENSTER
Bezug nach Sanierung! Neuer Kunststoffboden, Übergabe frisch ausgemalt

Teilweise Hofruhelage mit schönem Ausblick.

Helle Büroräume Nahe Wiedner Hauptstraße, Technische Universität
mit bester Infrastruktur in Karlsplatz-Nähe.

Ideale Verkehrsanbindungen:
*U1-Station Taubstummengasse
*Linien 1, 62, Badner Bahn

Kunststofffenster, Hauszentralheizung mit Öl, Internetanschluß, Kabelkanäle an der Wand
Raumhöhen ab ca. 2,65 m, 4-Personen-Lift

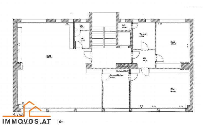
Raumaufteilung:
- 1 Vorraum
- 1 großer Arbeitsraum, teilbar, dzt. rund 50,5 m2 ( im Plan sind unten die beiden Räume noch mit Trennwand
gezeichnet)
- 1 Arbeitsraum straßenseitig
- 1 Toiletten
- 1 Teeküche

Lage:
3. Liftstock, nicht barrierefrei erreichbar, der 4-Personenlift startet im Mezzanin,

Bruttomonatsmiete inkl. BK- und Liftkosten: € 1076.40,
Das monatliche Heizkostenakonto beträgt € 162,50 zzgl. 20 % USt pro Monat.


Der zugespielte Grundriss zeigt den Umriss vom 4. Stock.
Eine Planskizze vom 3. OG finden Sie im Exposé.

In der Nachbarschaft gibt es einen Stellplatz hofseitig zur Miete: € 100,- -zzgl. 20 % USt (keine E-Autos!)
Auf der Favoritenstraße kann man Stellplätze zur Bruttomiete von € 130,- anmieten.

Kontakt: Frau Daniela Erlach, Tel ++4369911942229 e-mail: erlach@immovos.at

Überblick

Objekt ID:
46600
Bundesland:
Wien
Bezirk:
Wien 4.,Wieden
Ort:
Wien 4.,Wieden
Lage:
Karlsplatz, Wiedner Hauptstraße
Verkehrsanbindung:
U 4, U1, Badner Bahn, Linie 62

Kosten

Gesamtmiete (inkl. USt):
€ 1.076,40
Miete (ex. USt):
€ 799,50
Betriebskosten (ex. USt):
€ 97,50
Gesamtbelastung (inkl. USt):
€ 1.076,40
USt gesamt:
€ 179,40
Kaution:
3 MM
Provision:
3 BMM

Flächen

Wohnfläche ca.:
65,00 m²
Nutzfläche ca.:
65,00 m²

Detaildaten

Verfügbar ab:
ab sofort
Befristung:
unbefristet
Baujahr:
1970
Zimmer:
2
Stockwerk:
3
Anzahl WCs:
1
Alter:
Neubau
Heizung:
Zentralheizung
Heizwärmebedarf:
76 kWH/m²/Jahr
fGEE:
1,41

Ausstattung:

Abstellraum
Lift
Teilmöbliert
Parkplatz
Klimaanlage
Kabel oder Sat TV
Isolierfenster

Ihr Berater:

Mag. Martin Knor

+43 699 / 170 43 589

knor [at] immovos.at

Immobilienangebote online

Ihre Anfrage:

Name: Strasse: Plz: Ort: Tel: Email: Nachricht:
  KonsumentIn gemäß Konsumentenschutz

Bitte entscheiden Sie durch Anklicken:

Hinweis: Wir sind verpflichtet, die Identität unserer Vertragspartner von Beginn des Makler-Dienstleistungsvertrages an zu überprüfen; falls Sie unter den angegebenen Daten nicht gemeldet oder nicht registriert sein sollten, ersuchen wir um Übermittlung einer Ausweiskopie.

Datenschutzinformation zur Kenntnis genommen

LICHTDURCHFLUTET - NEUE FENSTER
Bezug nach Sanierung! Neuer Kunststoffboden, Übergabe frisch ausgemalt

Teilweise Hofruhelage mit schönem Ausblick.

Helle Büroräume Nahe Wiedner Hauptstraße, Technische Universität
mit bester Infrastruktur in Karlsplatz-Nähe.

Ideale Verkehrsanbindungen:
*U1-Station Taubstummengasse
*Linien 1, 62, Badner Bahn

Kunststofffenster, Hauszentralheizung mit Öl, Internetanschluß, Kabelkanäle an der Wand
Raumhöhen ab ca. 2,65 m, 4-Personen-Lift

Raumaufteilung:
- 1 Vorraum
- 1 großer Arbeitsraum, teilbar, dzt. rund 50,5 m2 ( im Plan sind unten die beiden Räume noch mit Trennwand
gezeichnet)
- 1 Arbeitsraum straßenseitig
- 1 Toiletten
- 1 Teeküche

Lage:
3. Liftstock, nicht barrierefrei erreichbar, der 4-Personenlift startet im Mezzanin,

Bruttomonatsmiete inkl. BK- und Liftkosten: € 1076.40,
Das monatliche Heizkostenakonto beträgt € 162,50 zzgl. 20 % USt pro Monat.


Der zugespielte Grundriss zeigt den Umriss vom 4. Stock.
Eine Planskizze vom 3. OG finden Sie im Exposé.

In der Nachbarschaft gibt es einen Stellplatz hofseitig zur Miete: € 100,- -zzgl. 20 % USt (keine E-Autos!)
Auf der Favoritenstraße kann man Stellplätze zur Bruttomiete von € 130,- anmieten.

Kontakt: Frau Daniela Erlach, Tel ++4369911942229 e-mail: erlach@immovos.at
Objekt an Freunde oder Bekannte senden: