++ NAEHE RADETZKYPLATZ: helle 2-ZI-ALTBAUWOHNUNG
***NAEHE RADETZKYPLATZ/Weissgerberviertel: helle 2-Zimmer-Altbauwohnung im 3. OG (ohne Lift), mit ca. 50m² WNFL in gut geführtem Altbauhaus.
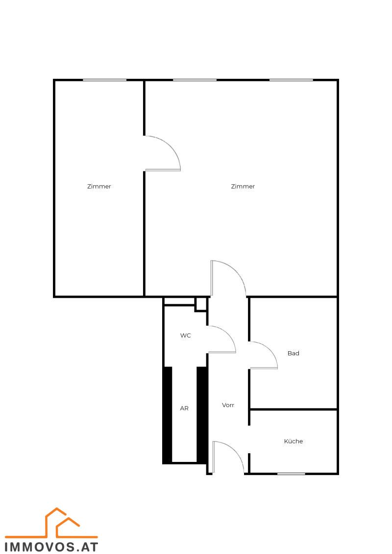
Grundriss:
-Vorzimmer
-Wohnzimmer
-Schlafkabinett (begehbar via Wohnzimmer)
-separate Einbauküche mit Herd, Spüle, Einbaukühlschrank, Ober- und Unterschränken
-Badezimmer mit Badewanne, Handwaschbecken und Waschmaschinenanschluss
-separates WC mit anliegendem Stauraum (Wandnische)
Die Raumhöhe in den Zimmern beträgt ca. 3,10m.
Ein Kellerabteil und Abstellraum im vis-a-vis im Gang stehen zur Verfügung.
Zustand: gepflegt / bezugsfertig.
Lage im Haus: 3. OG (ohne Lift!)
Ausgezeichnete Infrastruktur und Anbindung! Sämtliche Einrichtungen und Geschäfte des täglichen Bedarfs sowie zahlreiche Lokale und Cafes sind bequem fußläufig erreichbar.
Die beliebten innerstädtischen Freizeitoasen Grüner Prater und Donaukanal befinden sich in unmittelbarer Nähe!
Direkte Anbindung an die Innenstadt mit der Straßenbahnlinie 1. Den innerstädtischen Verkehrsknoten Landstraße Wien Mitte erreicht man fußläufig n ca. 10 Gehminuten.
Öffentliche Anbindung: Straßenbahnlinien 1, O, U-Bahn U3/U4, S-Bahnen, CAT (Station Wien Mitte, ca. 750m),
Konditionen:
Kaufpreis: € 244.500,00
Provision: 3% des erzielten Kaufpreises + 20% USt.
Bezug: ab KV
+++Bitte beachten Sie+++
Wir sind als Doppelmakler tätig.
Für Konsument:innen gilt:
Durch das Inkrafttreten des Fern- und Auswärtsgeschäftegesetzes (FAGG/VRUG) können wir Ihnen erst nach Ihrer Zustimmung zum Verzicht auf die darin festgelegte 14-tägige Rücktrittsfrist bzw. Ihre Bestätigung, dass Sie unser vorzeitiges Tätigwerden wünschen, die Detailunterlagen zu diesem unverbindlichen Immobilienangebot mit Adresse zusenden.
Daher erhalten Sie vorab eine gesonderte Nachricht mit allen Informationen zum FAGG, in der Sie uns diese Zustimmung erteilen können.
Erst nach Erhalt senden wir Ihnen gerne die gewünschten Informationen zu diesem Angebot bzw. geben wir Ihnen die Adresse bekannt, bitte um Verständnis!
Es entstehen Ihnen keine zusätzlichen Kosten durch Ihre erteilte Zustimmung, unser Anspruch auf die vereinbarte Vermittlungsprovision entsteht erst bei einem von uns erfolgreich vermittelten Geschäftsabschluss bzw. bei dessen Rechtswirksamkeit.
Bitte richten Sie ihre schriftliche Anfrage an: knor@immovos.at
Grundriss:
-Vorzimmer
-Wohnzimmer
-Schlafkabinett (begehbar via Wohnzimmer)
-separate Einbauküche mit Herd, Spüle, Einbaukühlschrank, Ober- und Unterschränken
-Badezimmer mit Badewanne, Handwaschbecken und Waschmaschinenanschluss
-separates WC mit anliegendem Stauraum (Wandnische)
Die Raumhöhe in den Zimmern beträgt ca. 3,10m.
Ein Kellerabteil und Abstellraum im vis-a-vis im Gang stehen zur Verfügung.
Zustand: gepflegt / bezugsfertig.
Lage im Haus: 3. OG (ohne Lift!)
Ausgezeichnete Infrastruktur und Anbindung! Sämtliche Einrichtungen und Geschäfte des täglichen Bedarfs sowie zahlreiche Lokale und Cafes sind bequem fußläufig erreichbar.
Die beliebten innerstädtischen Freizeitoasen Grüner Prater und Donaukanal befinden sich in unmittelbarer Nähe!
Direkte Anbindung an die Innenstadt mit der Straßenbahnlinie 1. Den innerstädtischen Verkehrsknoten Landstraße Wien Mitte erreicht man fußläufig n ca. 10 Gehminuten.
Öffentliche Anbindung: Straßenbahnlinien 1, O, U-Bahn U3/U4, S-Bahnen, CAT (Station Wien Mitte, ca. 750m),
Konditionen:
Kaufpreis: € 244.500,00
Provision: 3% des erzielten Kaufpreises + 20% USt.
Bezug: ab KV
+++Bitte beachten Sie+++
Wir sind als Doppelmakler tätig.
Für Konsument:innen gilt:
Durch das Inkrafttreten des Fern- und Auswärtsgeschäftegesetzes (FAGG/VRUG) können wir Ihnen erst nach Ihrer Zustimmung zum Verzicht auf die darin festgelegte 14-tägige Rücktrittsfrist bzw. Ihre Bestätigung, dass Sie unser vorzeitiges Tätigwerden wünschen, die Detailunterlagen zu diesem unverbindlichen Immobilienangebot mit Adresse zusenden.
Daher erhalten Sie vorab eine gesonderte Nachricht mit allen Informationen zum FAGG, in der Sie uns diese Zustimmung erteilen können.
Erst nach Erhalt senden wir Ihnen gerne die gewünschten Informationen zu diesem Angebot bzw. geben wir Ihnen die Adresse bekannt, bitte um Verständnis!
Es entstehen Ihnen keine zusätzlichen Kosten durch Ihre erteilte Zustimmung, unser Anspruch auf die vereinbarte Vermittlungsprovision entsteht erst bei einem von uns erfolgreich vermittelten Geschäftsabschluss bzw. bei dessen Rechtswirksamkeit.
Bitte richten Sie ihre schriftliche Anfrage an: knor@immovos.at
Überblick
Objekt ID:
46922
Bundesland:
Wien
Bezirk:
Wien 3.,Landstraße
Ort:
Wien 3.,Landstraße
Lage:
Naehe Radetzkyplatz / Weissgerberviertel
Verkehrsanbindung:
1, O, U3, U4, CAT, S-Bahn, 80A, N29
Kosten
Preis:
€ 244.500,00
Betriebskosten (ex. USt):
€ 106,87
sonst. Kosten (ex. USt):
€ 19,46
mtl. Kosten (inkl. USt.):
€ 137,02
Provision:
3% (zzgl. 20% USt)
Flächen
Wohnfläche ca.:
50,00 m²
Detaildaten
Verfügbar ab:
ab sofort
Baujahr:
1883
Zimmer:
2
Geschosse:
3
Stockwerk:
3
Bäder:
1
Anzahl WCs:
1
Alter:
Altbau
Heizung:
Etagenheizung
Befeuerung:
Gas
Heizwärmebedarf:
445,32 kWH/m²/Jahr
Boden:
Parkett
Boden:
Fliesen
Ausstattung:
Abstellraum
Einbauküche
Isolierfenster




